Top.Mail.Ru
Каталог

ПН-ПТ: 03:00 до 12:00 (МСК)

г. Благовещенск, ул. Нагорная, 21

sales@top-stm.ru

sales@stm-vostok.ru

0

Башенный кран QTZ160 (H6022) гп 10 тонн без оголовка, высота 90м, 60м свободного стояния, стрела 60м, гп на конце стрелы 2,1т, пристежки к зданию 2 комплекта

✅ Купить Башенный кран QTZ160 (H6022) гп 10 тонн без оголовка, высота 90м, 60м свободного стояния, стрела 60м, гп на конце стрелы 2,1т, пристежки к зданию 2 комплекта у официального дилера ТОП-СТМ. ⭐ 15 лет опыта работы. ➤Любые оригинальные запчасти и их аналоги, профессиональное обслуживание и индивидуальный подход!
Башенные краны Dahan
(Голосов нет)

17 118 816 ₽

Цена указана с учетом НДС и утилизационным сбором

*цена меняется от курса валют, уточняйте стоимость у менеджеров

17118816.00 RUB Под заказ
Задать вопрос менеджеру
Андрей
Менеджер-консультант
23 отзывов
+7 (914) 384-71-30
Под заказ
Срок поставки в днях: 70
Описание

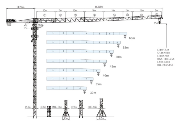
Башенный кран QTZ160 (H6022) — это мощное и надёжное подъёмное оборудование, предназначенное для строительства высотных зданий, промышленных объектов и инфраструктурных проектов. С грузоподъёмностью 10 тонн, кран обеспечивает эффективное выполнение монтажных и погрузочно-разгрузочных работ на значительной высоте. Конструкция крана предусматривает максимальную высоту подъёма до 90 метров, что позволяет использовать его при возведении многоэтажных сооружений. 60 метров свободного стояния без дополнительных креплений обеспечивают гибкость в планировании строительной площадки и упрощают организацию работ на начальных этапах строительства.

Кран оснащён стрелой длиной 60 метров, что значительно расширяет радиус действия и позволяет охватить большую площадь строительной площадки. Грузоподъёмность на конце стрелы составляет 2,1 тонны, что обеспечивает возможность работы с тяжёлыми грузами даже на максимальном вылете. Для дополнительной устойчивости и безопасности в комплект входят два набора пристежек к зданию, которые позволяют надёжно закрепить кран на высоте, обеспечивая стабильность при сильных ветровых нагрузках или интенсивной эксплуатации.

Этот башенный кран станет незаменимым помощником на крупных строительных объектах, где требуется высокая производительность, надёжность и безопасность. QTZ160 (H6022) сочетает в себе передовые инженерные решения, прочность и функциональность, что делает его оптимальным выбором для профессиональных строительных компаний. Техника отличается простотой в монтаже и обслуживании, соответствует современным стандартам безопасности и эффективности. Конструкция без оголовка позволяет адаптировать кран под специфические требования проекта, обеспечивая максимальную универсальность.

Характеристики

Характеристики Башенный кран QTZ160 (H6022) гп 10 тонн без оголовка, высота 90м, 60м свободного стояния, стрела 60м, гп на конце стрелы 2,1т, пристежки к зданию 2 комплекта

Двигатель
Мощность
45 кВт
Рабочие характеристики
Размер секции
1.6 × 1.6 × 3 м
Высота под крюком
60 м
Скорость перемещения тележки
40.5 м/мин
Масса противовеса
14795 кг
Грузоподъемность крана
10000 кг
Высота подъема до крюка
60 м
Длина стрелы
60000 мм
Высота свободностоящего крана
60 м
Грузоподъёмность на конце стрелы
2100 кг
Скорость вращения
0-0.6 об/мин
Скорость подъема
45 м/мин
Трансмиссия
Привод
Электрический
Оборудование
Механизмы
Подъем, вращение, перемещение тележки, перемещение крана
Питание
380В (±10%), 50Гц
Основание крана
Сборное
Оголовок
Без оголовка
Способы оплаты
Порядок и условия оплаты строительной техники оговариваются индивидуально с каждым клиентом. Мы ценим ваш выбор и стремимся предложить максимально удобные условия сотрудничества. Подробнее о способах оплаты
Условия доставки
  •   Техника может отправляться по железной дороге в контейнерах или на платформах.
  •   Технику можно доставить своим ходом (своим ходом не доставляются экскаваторы, катки и т.п. техника).
  •   Техника доставляется автодоставкой.(возможность авто доставки имеют - фронтальные погрузчики, автогрейдеры и т.п).
  •   Комбинированный вариант.
Отзывы (0)
Авторизуйтесь на сайте, чтобы оставить отзыв. Войти
Вопросы и Ответы (0)
ЗАДАТЬ ВОПРОС

Категории

X
Этот сайт использует файлы cookies и сервисы сбора технических данных посетителей (данные об IP-адресе, местоположении и др.) для обеспечения работоспособности и улучшения качества обслуживания. Продолжая использовать наш сайт, вы автоматически соглашаетесь с использованием данных технологий.